物件詳細

寝屋川市三井が丘4丁目

寝屋川市三井が丘4丁目

JR学研都市線「寝屋川公園」駅・徒歩27分

2,280万円

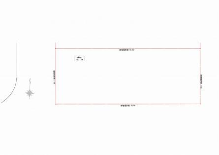
区画図


【建築条件付き売土地】
■ゆとりの土地約44.68坪
■前面道路約5.2m
■閑静な住宅地
■商業施設充実

所在地 寝屋川市三井が丘4丁目
交通 JR学研都市線「寝屋川公園」駅・徒歩27分
間取り
土地面積147.71m2(44.68坪) 建延面積
前面道路西側約5.2m 私道負担
築年月 建物構造
用途地域 近隣商業地域 都市計画 市街化区域
土地権利 所有権 地目 宅地
建ぺい率80% 容積率200%
向き西 駐車場
小学校区 三井小学校 中学校区 第十中学校
取引態様 仲介 現況/引き渡し 更地/相談
周辺環境 コンビニ スーパー 病院 銀行 郵便局 小学校 中学校
備考 〜物件おすすめポイント〜
・土地面積約44.68坪のゆとりある区画で、
 駐車スペース2台付きの住まいをご検討いただけます。
・参考プランは土間収納やパントリー、ファミリークローゼットなど
 収納を確保し、家事や片付けがしやすい間取りです。
・約18.2帖のLDKは対面キッチンを採用し、料理をしながら
 リビングで過ごす家族の様子を感じられる空間。
・建築条件付き売土地のため、クロスや床材、
 水回り設備のカラーなどを選びながら、
 自分たちの暮らしに合わせた住まいを形にできる点も魅力です。
・保育所徒歩約2分、小学校徒歩約6分。スーパーやドラッグストアも
 徒歩圏内に揃う生活しやすい環境です。
デジタルチラシ マンションギャラリー センチュリー21について ご成約ありがとうございます スタッフコラム
センチュリー21

〒578-0901
大阪府東大阪市加納6丁目14番5号
TEL 072-873-8821
FAX 072-873-9021

AM 9:00〜PM 8:00 毎週水曜定休

売却専門サイト 不動産の売却・査定はおまかせください! instagram

お問い合わせ
求人