物件詳細

東大阪市加納8丁目

東大阪市加納8丁目

JR学研都市線「住道」駅・徒歩13分

2,080万円

■南向き前面T字路で陽当たり良好
■個室を確保できる5DK
■商業施設充実

所在地 東大阪市加納8丁目
交通 JR学研都市線「住道」駅・徒歩13分
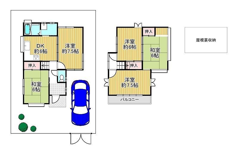
間取り 5DK
土地面積76.93m2(23.27坪) 建延面積81.65m2(24.69坪)
前面道路南側約5.5m 私道負担
築年月昭和62年06月 建物構造木造
2階建て
用途地域 第1種住居地域 都市計画 市街化区域
土地権利 所有権 地目 宅地
建ぺい率60% 容積率200%
向き 駐車場1台有り
小学校区 加納小学校 中学校区 盾津東中学校
取引態様 専属専任媒介 現況/引き渡し 居住中/相談
周辺環境 コンビニ スーパー 病院 銀行 郵便局 小学校 中学校
備考 〜物件おすすめポイント〜
・JR学研都市線「住道」駅徒歩13分。南向きで前面T字路のため、
 日当たりや風通し良好な立地です。
・5DKの間取りは、子ども部屋や在宅ワークスペースなど、
 家族の成長や暮らし方に合わせて使い分けが可能。
・万代徒歩3分、サンディ徒歩4分、
 コンビニやドラッグストアも徒歩圏内に揃い、
 仕事帰りの買い物もスムーズ。イオンタウンへも徒歩9分で、
 週末のまとめ買いにも便利。
・公園や小学校、病院も徒歩圏内に揃い、子育て中でも安心感のある住環境。
・天窓やカーポート付き駐車スペースも備え、
 日々の生活にゆとりを持たせてくれる住まいです。
・家族の暮らしに合わせたリフォームも可能です!
デジタルチラシ マンションギャラリー センチュリー21について ご成約ありがとうございます スタッフコラム
センチュリー21

〒578-0901
大阪府東大阪市加納6丁目14番5号
TEL 072-873-8821
FAX 072-873-9021

AM 9:00〜PM 8:00 毎週水曜定休

売却専門サイト 不動産の売却・査定はおまかせください! instagram

お問い合わせ
求人